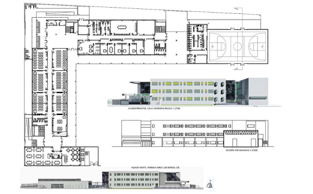
IES Málaga
Proyecto para el concurso de construcción para un IES en Teatinos, Málaga. Valoramos los conceptos de Soleamiento, composición y funcionalidad. Segundo premio.
Tipología
Centro Educativo.
Promotor
Junta de Andalucía.
Arquitecto
Victor Bayo Vigo.
Colaboradores técnicos
Ignacio Beca Perteguer, Maria Teresa Jaraba Bonet.
Año de construcción
2015
Ubicación
Teatinos, Málaga.
Superficie
5.199,21 m²
Presupuesto
3.900.211,10 €
Arquitectura
Concurso de ideas IES Teatinos.
Características constructivas
Soleamiento y funcionalidad respetando el programa del concurso.



