Vivienda unifamiliar en Briones
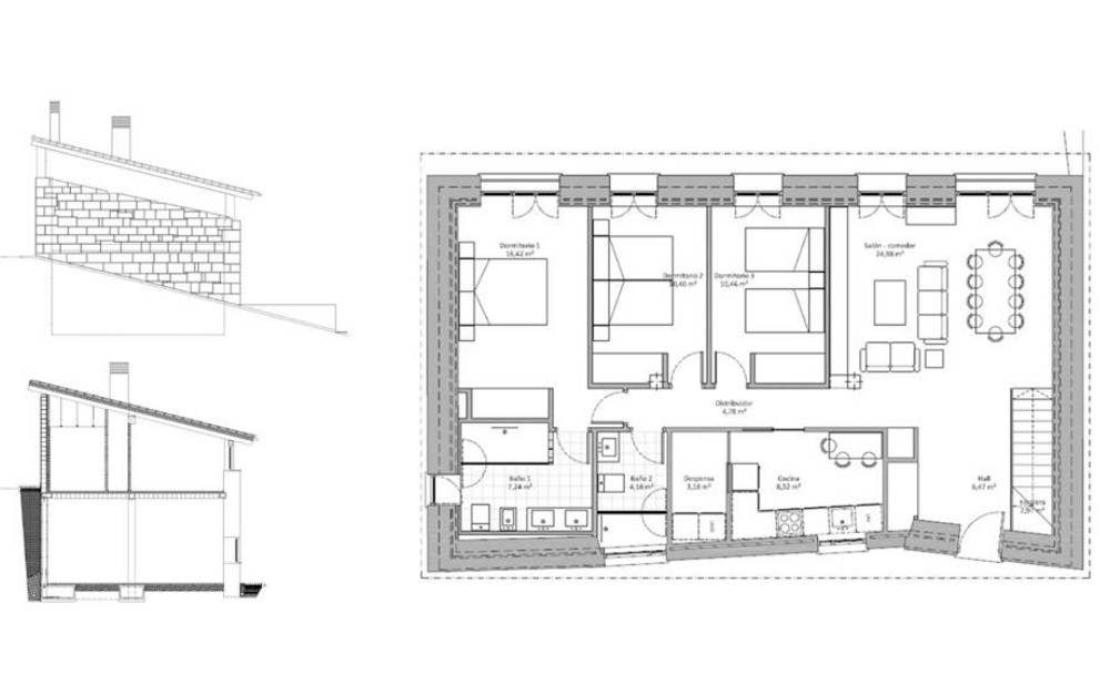
Transformación de las ruinas de una antigua bodega familiar en una vivienda unifamiliar a la forma tradicional. Construcción vernácula. Se recuperan todas las piezas posibles de cantería para recuperar los muros de sillarejos. Dentro se desarrolla un programa funcional para vivienda con técnicas constructivas modernas.
Tipología
Vivienda unifamiliar aislada.
Promotor
Privado.
Arquitecto
Ignacio Beca Perteguer.
Colaboradores técnicos
Victor Bayo Vigo, Maria Teresa Jaraba Bonet.
Constructor
Autoconstrucción
Año de construcción
2014
Ubicación
Briones, La Rioja.
Superficie
258,54 m²
Presupuesto
98.551,04 €
Arquitectura
Rehabilitación.
Características constructivas
Muros de carga de sillarejos. Cubierta de madera.


