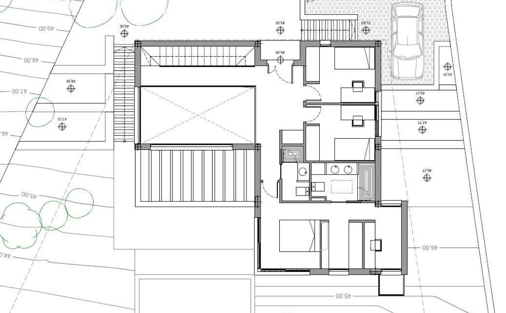
Vivienda unifamiliar en el Rincón de la Victoria
Vivienda construida en la ladera de la montaña, con una inclinación del terreno muy grande y entrada desde la parte más alta. El aparcamiento se ubica en lo más alto de la vivienda, y el programa de vivienda se desarrolla a medida que bajamos por las escaleras hasta la planta baja.
Tipología
Vivienda unifamiliar aislada.
Promotor
Privado.
Arquitecto
Ignacio Beca Perteguer.
Colaboradores técnicos
Victor Bayo Vigo, Maria Teresa Jaraba Bonet.
Constructor
BABE Projects SL
Año de construcción
2019
Ubicación
La Cala del Moral. Rincón de la Victoria, Málaga.
Superficie
129,72 m²
Presupuesto
159.742,93 €
Arquitectura
Obra nueva.
Características constructivas
Muros de contención para construcción en ladera.




